Especificaciones :
Dimensiones (LxAr/Alto) : 12,2 m x 2,5 m x 2,9 m
Este módulo habitable está construido a partir de un contenedor de carga de 40 pies. Es un módulo excelente que puede usarse todo el año, construido según la normativa de construcción vigente.
La fachada gris claro y el muro del jardín vivo hacen que esta pequeña casa sea elegante y única. Las enormes ventanas dejan entrar mucha luz natural.
Es la opción ideal para una casa de vacaciones o una casa de invitados.
La casa se entrega llave en mano. Dispone de un baño totalmente funcional, cocina opcional, dormitorio independiente, ventilación, aire acondicionado con calefacción, calentador de agua y calefacción infrarroja por suelo radiante.
Superficie de construcción = 30 m²
Salón = 25 m²
Dormitorios = 2
plantas = 1
Características :
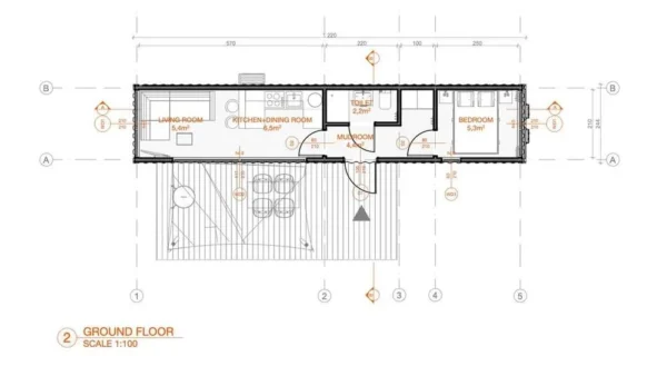
– Distribución: Dormitorio y baño separados, salón con cocina pequeña, pasillo,
armario – Aislamiento: 8 cm PUR
– Calefacción/refrigeración: Aire acondicionado con función de calefacción y calefacción
infrarroja por suelo radiante – Fachada: pintada con pared
parcial del jardín – Tejado: pintado






























